instant valuation
2 2

2 bed House - Detached - For Sale
Benfleet Close, Sutton
£550,000 Freehold

  • NEWLY BUILT Detached 2/3 Bedroom house
  • Open plan kitchen/living space
  • Ground floor bedroom could be used as a further reception
  • Driveway to front & landscaped garden to rear
  • Stylish bath & shower rooms
  • Utility room on the ground floor
  • Situated in a desirable & quiet location
  • Finished to an excellent standard
  • Close to excellent schooling, transport links & amenities
  • *Please note that the images have been digitally enhanced to represent a more completed property

* JUST ONE PLOT AVAILIBLE * OCTOBER COMPLETION * Benfleet Close is just one, 2/3 bedroom, newly built detached home, built to an excellent standard. It really is a light and airy yet, also energy efficient home that has been fastidiously designed & built, sparing no time or expense on how the house is finished. Inside, it offers fabulous multipurpose space for anyone looking for a contemporary home. Location-wise it couldn't get any better. Quiet and peaceful, yet within a highly convenient, non cut through road, you have incredible schooling, transport links and amenities on your doorstep. You'll be spoilt for choice for dining out and going for walks in green open spaces, enhancing your well-being. Inside the house, the real heart of the home is the kitchen/dining/family room, with abundance of workspace to really cook up a storm in and sliding doors leading out to your garden - you'll be the envy of all of your friends and family! Breakfast ready, you'll enjoy sitting down with your loved ones, looking forward to the day ahead. Upstairs, the bedrooms will truly impress and will be a pleasure to relax in, we think that you'll be having a few more 'early nights' as you will be so eager to nestle down in what are incredibly stylish surroundings. Both floors are also served by either a beautiful modern bathroom or shower room. But there's more! How about a wonderful, landscaped rear garden that will be great for every age range, along with allocated parking on the front driveway. With all these benefits, along with 10 year new build, insurance backed warranty, we think that the new owners will be very lucky indeed. *Please note that the images are computer generated and do not represent the finished property.

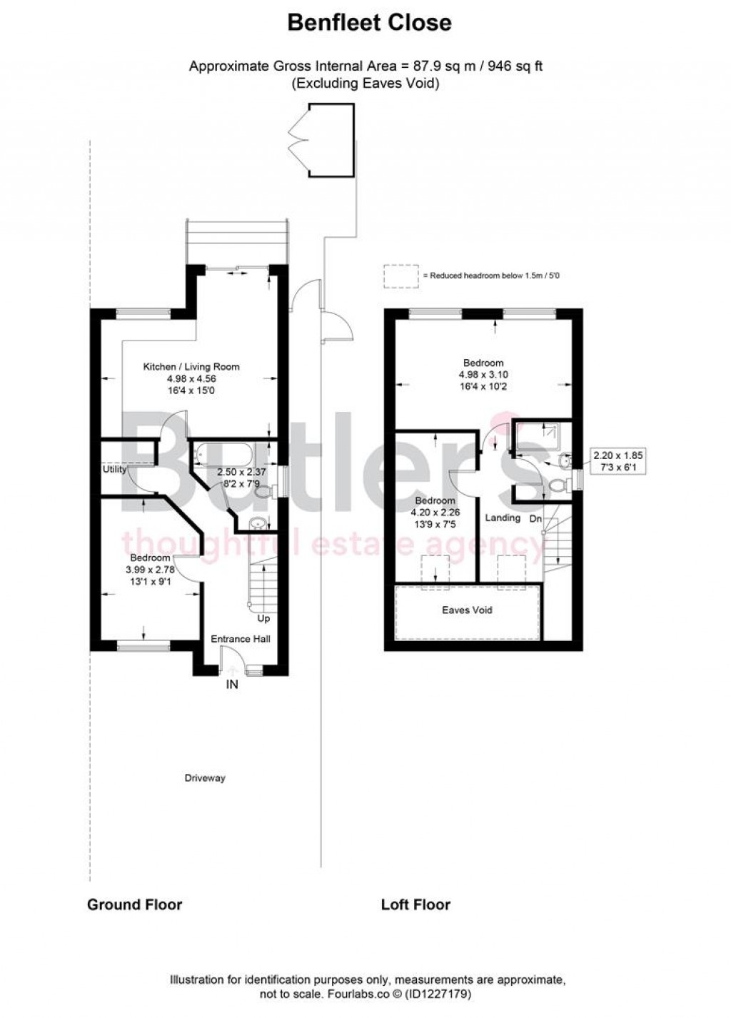
GROUND FLOOR

Hallway

Kitchen/Living Room (4.98m x 4.57m maximum)

Reception/Bedroom (3.99m x 2.77m maximum)

Bathroom (2.49m x 2.36m maximum)

Utility Room

FIRST FLOOR

Landing

Bedroom (4.98m x 3.10m)

Bedroom (4.19m x 2.26m)

Family Shower Room (2.21m x 1.85m)

OUTSIDE

Driveway

Decked Area

Rear Garden

Floorplans For Benfleet Close, Sutton
Arrange a viewing for Benfleet Close, Sutton

For further details on this property please call us on:
0203 9170 160

Brochure Download PDF Arrange Viewing

Share this Property